Описание
Особенности конструкции и материалы
⦁ Прочная металлическая рама, изготовленная из стали толщиной 2 мм с антикоррозийным порошковым покрытием, обеспечивающая надежность и долговечность конструкции.
⦁ Монтажная панель из влагостойкой шлифованной фанеры толщиной 30 мм, предназначенная для крепления поручней и опорных элементов (толщина фанеры 27 мм).
⦁ Ножки из нержавеющей стали с регулировкой высоты до 20 см — позволяют устанавливать модуль в различных условиях и подстраиваться под высоту пола.
⦁ Совместимость с подвесными унитазами с межосевым расстоянием 18 и 23 см, что гарантирует универсальность применения с большинством моделей сантехники.
⦁ Расширенная площадь крепления поручней обеспечивает максимально надежное крепление и повышенную безопасность при эксплуатации.
Технические характеристики и функционал
⦁ Глубина модуля — 10 см, что позволяет экономить пространство и подходит для установки в современные легкие и несущие стены.
⦁ Интеграция с инсталляционными системами HYDROSMART, обеспечивающими надежность и беспроблемную эксплуатацию.
⦁ Специальный пенопластовый кожух, защищающий детали от конденсата и служащий дополнительной шумоизоляцией для бесшумной работы сантехнического оборудования.
⦁ Регулируемые монтажные элементы упрощают процесс установки и адаптацию под индивидуальные параметры помещения.
⦁ Долгий срок службы — гарантия 10 лет и эксплуатация свыше 50 лет благодаря качественным материалам и продуманной конструкции.
Преимущества использования модуля HYDROSMART 07803.N
⦁ Высокая надежность и прочность, позволяющая выдерживать большие нагрузки и обеспечивать безопасность пользователей.
⦁ Адаптация санузлов для маломобильных групп населения, благодаря возможности крепления поддерживающих поручней, что особенно актуально для учреждений соцзащиты, больниц и частных домов.
⦁ Современный дизайн и компактность, позволяющие сохранять эстетичный вид ванной комнаты без лишних выступающих элементов.
⦁ Система скрытого монтажа, благодаря которой все коммуникации и фиксирующие детали аккуратно спрятаны за стеной.
⦁ Универсальность совместимости — модуль подходит для разных видов поручней и большинства подвесных унитазов.
Модуль HYDROSMART для крепления поручней 07803.N — это идеальное решение для тех, кто хочет сделать санузел комфортным, безопасным и доступным для всех категорий пользователей. Прочная конструкция и высокая совместимость с подвесными унитазами дают уверенность в надежности и долговечности всей системы. Если требуется адаптация пространства под нужды маломобильных пользователей или просто качественное крепление поручней — этот модуль станет отличным выбором.
Характеристики
| Цвет |
|
| Тип установки | Напольный |
| Источник питания | Без питания (Механические) |
| Бренд | HYDROSMART |
| Срок службы | 50 лет |
| Материал изготовления | Сталь |
| В комплекте | • монтажная рама • водостойкая деревянная панель • крепеж |
| Гарантия | 10 лет |
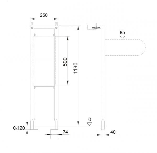
| Высота | 1130 мм |
| Ширина | 250 мм |
| Глубина | 40 мм |
| Вес (габ.) | 4,2 кг |
| Производитель | Россия |
| Цвет |
|
| Тип установки | Напольный |
| Источник питания | Без питания (Механические) |
| Бренд | HYDROSMART |
| Срок службы | 50 лет |
| Материал изготовления | Сталь |
| В комплекте | • монтажная рама • водостойкая деревянная панель • крепеж |
| Гарантия | 10 лет |
| Высота | 1130 мм |
| Ширина | 250 мм |
| Глубина | 40 мм |
| Вес (габ.) | 4,2 кг |
| Производитель | Россия |
Оплата заказанного товара
Физические лица
- Онлайн платежи СБП (необходимо подтверждение наличия Вашим менеджером)
- Оплата наличными в офисах (наличный расчет)
- Оплата в любом банке по реквизитам организации (наличный/безналичный)
Юридические лица
- Безналичный расчет в любом банке по реквизитам организации продавца перед отгрузкой товара;
- Безналичный расчет в любом банке по реквизитам организации продавца по договору постоплаты;
- Безналичный расчет в любом банке по реквизитам организации продавца по иным условиям договора.
Доставка заказанного товара по РФ
- Доставка не входит входит в стоимость товара
- Мы осуществляем доставку всего ассортимента магазина в любой город Российской Федерации и страны СНГ.
- Доставка по России осуществляется всеми популярными транспортными компаниями путем забора груза со склада отправителя.
- Отгрузка со склада производится исключительно плательщику или доверенному лицу при наличии оригинала доверенности и документа удостоверяющего личность.




